星空体育

您好!欢迎来到星空体育·(xingkong.com)官方网站 !

收藏本站产品展示联系星空体育24小时热线:155-30796-367
免费咨询热线:15530796367
星空体育
联系方式Contact us
联系方式

全国服务热线:15530796367

Q Q:583883685

邮 箱:1340821763@qq.com

联系人:张经理

网 址:lyjxgl.com

地 址:河北省沧州市泊头市

    开发区

当前位置:星空体育>>联轴器图纸

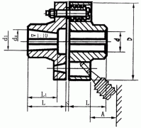
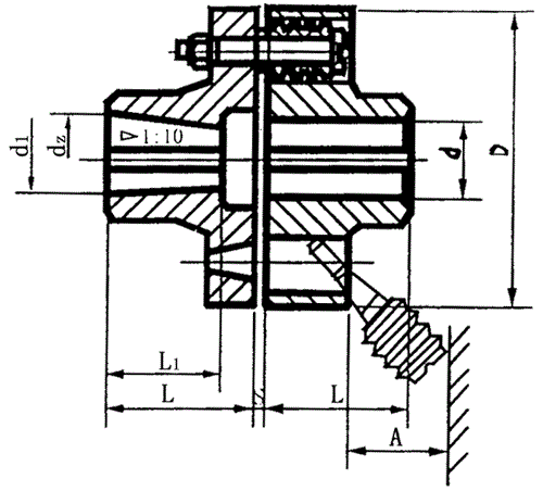
TL型弹性套柱销联轴器图纸

品 牌:星空体育
TL型弹性套柱销联轴器GB4323-1984具体型号TL1、TL2、TL3、TL4、TL5、TL6、TL7、TL8、TL9、TL10、TL11、 TL12、TL···...
订购热线:155-30796-367
在线咨询
TL型弹性套柱销联轴器GB4323-1984具体型号
TL1、TL2、TL3、TL4、TL5、TL6、TL7、TL8、TL9、TL10、TL11、 TL12、TL13 
弹性套柱销联轴器图纸
TL弹性联轴器主要参数与尺寸                             mm
型号
公称转矩
Tn
N.m
许用转速
[n]
r/min
轴孔直径
d,d1,dz
轴孔长度
尺寸
重量
kg
Y
J,J1,Z
D
S
A
L
L1
TL1
6.3
8800
9~14
20~32
14~20
71
3
18
1.2
TL2
16
7600
12~19
32~42
20~42
80
3
18
1.8
TL3
31.5
6300
16~25
42~62
30~62
95
4
35
2.0
TL4
63
5700
20~32
52~82
38~82
106
4
35
2.4
TL5
125
4600
25~40
62~112
44~112
130
5
45
8.5
TL6
250
3800
32~50
82~112
60~112
160
5
45
11
TL7
500
3600
40~65
112~142
84~142
190
5
45
16
TL8
710
3000
45~80
112~172
84~172
224
6
65
26
TL9
1000
2850
50~85
112~172
84~172
250
6
65
32
TL10
2000
2300
63~120
142~212
107~212
315
8
80
68
TL11
4000
1800
80~140
172~252
132~252
400
10
100
125
TL12
8000
1450
100~180
212~302
167~302
475
12
130
220
TL13
16000
1150
120~220
212~352
167~352
600
14
180
430
工作温度-20~+70℃,传递转矩为6.3~16000N·m,适用Y、J1、Z1型轴孔,对J、Z型孔要分析结构是否允许。


上一篇:没有了! 下一篇:TLL型带制动轮弹性套柱销联轴器图纸